© JoomAvatar.com
Joomla Extension-
Joomla Template
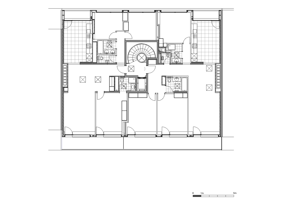
| Type: | Surélévation - transformation |
| Objet: | Surélévation d'immeuble de logements |
| Année: | 2008 - 2010 |
| Maître d'ouvrage: | Privé |
| Collaboration: | Isabelle-Irlé-Martin |
| Type: | Surélévation - transformation |
| Objet: | Surélévation d'immeuble de logements |
| Année: | 2008 - 2010 |
| Maître d'ouvrage: | Privé |
| Collaboration: | Isabelle-Irlé-Martin |